35棟 56件
-
新築
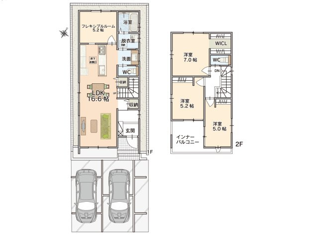
2,990万円
113.24㎡ (4LDK) /新築 /2階建
- 駐車2台可
- 建設住宅性能評価書付
- 閑静な住宅地
- 集中浄化槽
-
新築
3,299万円~4,299万円
98.95㎡~103.10㎡ (4LDK) /新築 /2階建
- 駐車2台可
- 閑静な住宅地
- 公共下水
【物件コメント】
・鳥居松小学校まで徒歩7分。
・JR中央本線「春日井」駅まで徒歩14分。
・閑静な住宅地で、環境も良好なエリアです☆
・主要道路へのアクセスが良く、各方面へのお出掛けに便利です♪
・広いリビング20.8帖!吹抜があり、自然光が射し込む明るい空間に☆
・安心の長期優良住宅で、減税や優遇措置も♪
・ZEH水準の断熱性能が光熱費を抑えます♪
おうちと皆様のご縁を結ぶことが私たちの使命です。
皆様にお会いできますことを、心よりお待ち申し上げております。 -
新築
4,299万円
105.16㎡ (4LDK) /予定 /2階建
- 駐車2台可
- 建設住宅性能評価書付
- 閑静な住宅地
- 公共下水
【物件コメント】
・限定1邸☆
・イーアス春日井まで徒歩10分♪毎日のお買い物も便利ですね☆
・自然豊かな公園があり、ペットとの生活も良好なエリアです!
・広いリビング19帖!くつろぎスペースが家族の憩いの空間に☆
・キッチン前のスタディカウンターは、多目的に利用できますね☆
・あると便利な土間収納☆収納豊富な人気の間取りです。
・食洗器付き!あると助かる時短アイテムです♪
おうちと皆様のご縁を結ぶことが私たちの使命です。
皆様にお会いできますことを、心よりお待ち申し上げております。 -
新築
3,990万円~4,090万円
101.25㎡ (2LDK) /予定 /2階建
- 駐車2台可
- 建設住宅性能評価書付
- 閑静な住宅地
- 公共下水
【物件コメント】
・住宅性能評価を取得☆住宅ローン控除の上限もUP!
・篠木小学校まで徒歩19分。
・スーパーやコンビニ、ドラッグストアなどの商業施設が充実♪
・主要道路へのアクセスが良く、各方面へのお出掛けに便利です♪
・弥生公園まで徒歩6分♪お子様の公園遊びやペットのお散歩に最適です☆
・主寝室が広く、WICでお部屋もスッキリ。
おうちと皆様のご縁を結ぶことが私たちの使命です。
皆様にお会いできますことを、心よりお待ち申し上げております。 -
新築
3,280万円~3,380万円
100.61㎡~101.86㎡ (4LDK) /新築 /2階建
- 駐車2台可
- 建設住宅性能評価書付
- 閑静な住宅地
- 公共下水
【物件コメント】
・安心の長期優良住宅で、減税や優遇措置も♪
・主要道路へのアクセスが良く、各方面へのお出掛けに便利です♪
・パントリー+WIC+SIC。収納豊富な人気の間取りです。
・整形地、駐車は並列で3台可能です♪(車種によります)
・リビング横に洋室がプラス!リビングと続き間仕様で、開放的な空間を演出します☆
・水回りが集中していて、家事効率もUP♪
おうちと皆様のご縁を結ぶことが私たちの使命です。
皆様にお会いできますことを、心よりお待ち申し上げております。 -
新築
3,290万円~3,490万円
95.58㎡~98.81㎡ (3LDK~4LDK) /予定 /2階建
- 駐車2台可
- 建設住宅性能評価書付
- 防犯カメラ
- 閑静な住宅地
- 公共下水
【物件コメント】
・JR中央線「春日井」駅まで徒歩19分。
・地震に強い!安心の耐震等級3☆
・住宅性能評価を取得☆住宅ローン控除の上限もUP!
・商業施設が充実しており、家族全員が生活しやすい住環境♪
・車による各方面へのアクセスが便利なエリア☆
・リビングに隣接する和室は、趣味やお昼寝用、ゲストルームやこたつ部屋など多用途に利用できますね☆
・水回りが集中していて、家事効率もUP♪
・主寝室が広く、WICでお部屋もスッキリ。
おうちと皆様のご縁を結ぶことが私たちの使命です。
皆様にお会いできますことを、心よりお待ち申し上げております。 -
新築
2,990万円~3,390万円
75.32㎡~104.49㎡ (2LDK~4LDK) /予定 /2階建
- 駐車2台可
- 建設住宅性能評価書付
- 防犯カメラ
- 閑静な住宅地
- 公共下水
【物件コメント】
・JR中央本線「勝川」駅まで徒歩16分。
・静かで安心な住宅エリア☆
・主要道路へのアクセスが良く、各方面へのお出掛けに便利♪
・スーパーやコンビニ、ドラッグストアなどの商業施設が充実♪
・リビングに隣接する和室は、ゲストルームなど多用途に利用できますね☆
・「住宅性能表示制度」4分野において全棟で最高等級を取得している「質」にこだわった一戸建です。
おうちと皆様のご縁を結ぶことが私たちの使命です。
皆様にお会いできますことを、心よりお待ち申し上げております。 -
新築
3,590万円~3,690万円
96.48㎡~97.31㎡ (4LDK) /予定 /2階建
- 駐車2台可
- 建設住宅性能評価書付
- 閑静な住宅地
- 公共下水
【物件コメント】
・家族三世代が安心に住める長期優良住宅☆
・静かで安心な住宅エリア☆
・小中学校まで徒歩10分圏内!
・落合公園まで徒歩8分♪お子様の公園遊びやペットのお散歩に最適です☆
・整形地、駐車は並列で3台可能です♪(車種によります)
・広いリビング19帖!くつろぎスペースが家族の憩いの空間に☆
・庭先が広くて日当り良好♪爽やかな風が抜けるおうちです☆
おうちと皆様のご縁を結ぶことが私たちの使命です。
皆様にお会いできますことを、心よりお待ち申し上げております。 -
新築
3,690万円
96.78㎡ (4LDK) /予定 /2階建
- 駐車2台可
- 建設住宅性能評価書付
- 閑静な住宅地
- 公共下水
【物件コメント】
・東名高速「春日井」インターまで車3分。
・主要道路へのアクセスが良く、各方面へのお出掛けに便利です♪
・保育施設が近く、公園も多いため子育て世帯に好環境☆
・住宅性能評価を取得☆住宅ローン控除の上限もUP!
・水回りが集中していて、家事効率もUP♪
・リビングに隣接する洋風和室は、趣味やお昼寝用、ゲストルームやこたつ部屋など多用途に利用できますね☆
おうちと皆様のご縁を結ぶことが私たちの使命です。
皆様にお会いできますことを、心よりお待ち申し上げております。
-
新築
3,590万円~3,990万円
93.17㎡~98.56㎡ (4LDK) /予定 /2階建
- 駐車2台可
- 建設住宅性能評価書付
- 閑静な住宅地
- 公共下水
【物件コメント】
・安心の長期優良住宅で、減税や優遇措置も♪
・保育施設が近く、公園も多いため子育て世帯に好環境☆
・主要道路へのアクセスが良く、各方面へのお出掛けに便利です♪
・「住宅性能表示制度」7項目において全棟で最高等級を取得している「質」にこだわった一戸建です。
・あると便利なリビング収納☆収納豊富な人気の間取りです。
・庭先が広くて日当り良好♪爽やかな風が抜けるおうちです☆
おうちと皆様のご縁を結ぶことが私たちの使命です。
皆様にお会いできますことを、心よりお待ち申し上げております。 -
新築
2,880万円
80.75㎡ (3LDK) /新築 /2階建
- 駐車2台可
- 閑静な住宅地
- 公共下水
【物件コメント】
・閑静な住宅地で、環境も良好なエリアです☆
・吉根中学校まで歩1分。
・主要道路へのアクセスが良く、各方面へのお出掛けに便利です♪
・スーパーやコンビニ、ドラッグストアなどの商業施設が充実♪
・自然豊かな公園があり、ペットとの生活も良好なエリアです!
・LDKから洗面スペースへと繋がる、効率的な家事動線♪
おうちと皆様のご縁を結ぶことが私たちの使命です。
皆様にお会いできますことを、心よりお待ち申し上げております。 -
新築
3,499.9万円
101.65㎡ (4LDK) /新築 /2階建
- 駐車2台可
- 建設住宅性能評価書付
- 閑静な住宅地
- 公共下水
【物件コメント】
・主要道路へのアクセスが良く、通勤や通学に便利です。
・徒歩圏内にスーパーや病院などの施設が多い好エリア♪
・商業施設が充実しており、家族全員が生活しやすい住環境♪
・小中学校まで徒歩15分圏内!
・あると便利な土間収納☆収納豊富な人気の間取りです。
・パントリー+WIC+S。収納豊富な人気の間取りです。
おうちと皆様のご縁を結ぶことが私たちの使命です。
皆様にお会いできますことを、心よりお待ち申し上げております。 -
新築
4,590万円
99.99㎡ (3LDK) /新築 /2階建
- 駐車2台可
- 閑静な住宅地
- 公共下水
【物件コメント】
・小中学校まで徒歩15分圏内!
・安心の長期優良住宅で、減税や優遇措置も♪
・商業施設が充実しており、家族全員が生活しやすい住環境です♪
・篠木公園まで徒歩11分♪お子様の公園遊びやペットのお散歩に最適です☆
・LDKから洗面スペースへと繋がる、効率的な家事動線☆
・お子様の勉強や作業スペースとしても使えるタタミコーナー☆
・洗面スペースは衣類やタオルなどがしまえる棚があり収納豊富♪
おうちと皆様のご縁を結ぶことが私たちの使命です。
皆様にお会いできますことを、心よりお待ち申し上げております。 -
新築
3,780万円
100.20㎡ (4LDK) /新築 /2階建
- 建設住宅性能評価書付
- 閑静な住宅地
- 公共下水
【物件コメント】
・限定1邸☆
・整形地、駐車は並列で3台可能です♪(車種によります)
・イーアス春日井まで徒歩13分。
・目の前に公園があり、子育て世帯に好環境☆
・車による各方面へのアクセスが便利なエリアです☆
・リビング横に洋室がプラス!リビングと続き間仕様で、開放的な空間を演出します☆
・主寝室が広く、WICでお部屋もスッキリ。
おうちと皆様のご縁を結ぶことが私たちの使命です。
皆様にお会いできますことを、心よりお待ち申し上げております。 -
新築
3,390万円
96.07㎡ (4LDK) /新築 /2階建
- 駐車2台可
- 建設住宅性能評価書付
- 閑静な住宅地
- 公共下水
【物件コメント】
・限定1邸☆
・安心の長期優良住宅で、減税や優遇措置も♪
・整形地、駐車は並列で3台可能です♪(車種によります)
・車の通行が少ない、静かな住宅エリアです☆
・主要道路へのアクセスが良く、各方面へのお出掛けに便利です♪
・リビング横に洋室がプラス!リビングと続き間仕様で、開放的な空間を演出します☆
・庭先が広くて日当り良好♪爽やかな風が抜けるおうちです☆
おうちと皆様のご縁を結ぶことが私たちの使命です。
皆様にお会いできますことを、心よりお待ち申し上げております。 -
新築
3,299万円
101.25㎡ (3LDK) /新築 /2階建
- 駐車2台可
- 建設住宅性能評価書付
- 閑静な住宅地
- 公共下水
【物件コメント】
・北城小学校まで徒歩12分。
・住宅性能評価を取得☆住宅ローン控除の上限もUP!
・不二ガ丘公園まで徒歩3分♪お子様の公園遊びやペットのお散歩に最適☆
・広いリビング21.2帖!くつろぎスペースが家族の憩いの空間に☆
・タタミコーナー付き!多用途に利用できますね☆
・主寝室が広く、WICでお部屋もスッキリ。
・水回りが集中していて、家事効率もUP♪
おうちと皆様のご縁を結ぶことが私たちの使命です。
皆様にお会いできますことを、心よりお待ち申し上げております。 -
3,498万円
179.90㎡ (6LDK) /築29年 /2階建
- 駐車2台可
- 閑静な住宅地
- 公共下水
【物件コメント】
・JR中央本線「春日井」駅まで徒歩19分。
・車で5分圏内にスーパーや病院などの施設が多い好エリア♪
・小中学校まで徒歩6分!
・関田公園、穴橋公園歩5分♪お子様の公園遊びやペットのお散歩に最適☆
・広いリビング21帖!くつろぎスペースが家族の憩いの空間に☆
・プラスアルファの設備【食洗機】【浴室暖房乾燥機】を装備☆
おうちと皆様のご縁を結ぶことが私たちの使命です。
皆様にお会いできますことを、心よりお待ち申し上げております。 -
新築
3,080万円
74.03㎡ (3LDK) /新築 /2階建
- 駐車2台可
- 閑静な住宅地
- 公共下水
【物件コメント】
・閑静な住宅地で、環境も良好なエリアです☆
・吉根中学校まで歩1分。
・主要道路へのアクセスが良く、各方面へのお出掛けに便利です♪
・スーパーやコンビニ、ドラッグストアなどの商業施設が充実♪
・自然豊かな公園があり、ペットとの生活も良好なエリアです!
・LDKから洗面スペースへと繋がる、効率的な家事動線♪
おうちと皆様のご縁を結ぶことが私たちの使命です。
皆様にお会いできますことを、心よりお待ち申し上げております。 -
新築
3,699万円
101.25㎡ (2LDK) /新築 /2階建
- 駐車2台可
- 建設住宅性能評価書付
- 閑静な住宅地
- 公共下水
【物件コメント】
・小中学校まで徒歩10分圏内!
・徒歩圏内に商業施設が多いため、毎日のお買い物も便利ですね
・全居室が南に面しているため、日当り良好です♪
・広いリビング21.5帖!くつろぎスペースが家族の憩いの空間に☆
・タタミコーナー付き☆収納豊富な人気の間取りです。
・LDKから洗面スペースへと繋がる、効率的な家事動線♪
・全居室が6帖以上!広々とした空間で趣味を満喫できるおうちです♪
・朝宮公園まで徒歩8分♪お子様の公園遊びやペットのお散歩に最適です☆
おうちと皆様のご縁を結ぶことが私たちの使命です。
皆様にお会いできますことを、心よりお待ち申し上げております。 -
新築
3,492万円
100.81㎡ (4LDK) /予定 /2階建
- 駐車2台可
- 建設住宅性能評価書付
- 閑静な住宅地
- 個別浄化槽
【物件コメント】
・JR中央本線「神領」駅まで徒歩17分。
・主要道路へのアクセスが良く、各方面へのお出掛けに便利♪
・生鮮食品やまひこ春日井店まで徒歩2分。
・庭先が広くて日当り良好♪爽やかな風が抜けるおうちです☆
・出川南公園公園まで徒歩9分♪お子様の公園遊びやペットのお散歩に最適☆
・広いリビング18帖!くつろぎスペースが家族の憩いの空間に☆
おうちと皆様のご縁を結ぶことが私たちの使命です。
皆様にお会いできますことを、心よりお待ち申し上げます。 -
新築
3,099万円
101.25㎡ (3LDK) /新築 /2階建
- 駐車2台可
- 建設住宅性能評価書付
- 閑静な住宅地
- 公共下水
【物件コメント】
・小中学校まで徒歩10分圏内!
・車の通行が少ない、静かな住宅エリアです☆
・スーパーやコンビニ、ドラッグストアなどの商業施設が充実♪
・和室付き☆収納豊富な人気の間取りです。
・主寝室が広く、WICでお部屋もスッキリ。
・自然豊かな公園があり、ペットとの生活も良好なエリアです!
おうちと皆様のご縁を結ぶことが私たちの使命です。
皆様にお会いできますことを、心よりお待ち申し上げております。 -
新築
4,190万円
101.43㎡ (4LDK) /新築 /2階建
- 駐車2台可
- 建設住宅性能評価書付
- 閑静な住宅地
- 公共下水
【物件コメント】
・安心の長期優良住宅で、減税や優遇措置も♪
・地震に強い!安心の耐震等級3☆
・ZEH水準を上回る断熱性能6で光熱費を抑えます♪
・全窓ペアガラスのため、断熱性と防音性も向上!
・中央本線「春日井」駅まで徒歩8分。
・小木田公園まで徒歩3分♪お子様の公園遊びやペットのお散歩に最適です☆
・LDKから洗面スペースへと繋がる、効率的な家事動線♪
おうちと皆様のご縁を結ぶことが私たちの使命です。
皆様にお会いできますことを、心よりお待ち申し上げております。 -
新築
3,090万円~3,390万円
95.58㎡~96.78㎡ (4LDK) /新築 /2階建
- 駐車2台可
- 建設住宅性能評価書付
- 防犯カメラ
- 閑静な住宅地
- 公共下水
◆子育て世帯に好エリア◆防犯カメラ付◆
-
新築
3,390万円~3,490万円
105.23㎡~109.38㎡ (4LDK) /新築 /2階建
- 駐車2台可
- 閑静な住宅地
- 個別浄化槽
【物件コメント】
・ZEH水準の断熱性能が光熱費を抑えます♪
・小野小学校まで徒歩18分。
・生鮮下津市場まで徒歩2分♪徒歩圏内に商業施設が多いため、毎日のお買い物も便利ですね☆
・整形地、駐車は並列で3台可能です♪(車種によります)
・広いリビング17帖!くつろぎスペースが家族の憩いの空間に☆
・主寝室が広く、WICでお部屋もスッキリ。
・食洗機が標準装備☆
おうちと皆様のご縁を結ぶことが私たちの使命です。
皆様にお会いできますことを、心よりお待ち申し上げております。 -
新築
2,780万円
96.89㎡ (4LDK) /新築 /2階建
- 駐車2台可
- 建設住宅性能評価書付
- 閑静な住宅地
- 公共下水
【物件コメント】
・小中学校まで徒歩10分圏内!
・安心の長期優良住宅で、減税や優遇措置も♪
・LDKから洗面スペースへと繋がる、効率的な家事動線♪
・リビング横に洋室がプラス!リビングと続き間仕様で、開放的な空間を演出します☆♪
・主要道路へのアクセスが良く、各方面へのお出掛けに便利です♪
・落合公園まで徒歩19分♪お子様の公園遊びやペットのお散歩に最適です☆
おうちと皆様のご縁を結ぶことが私たちの使命です。
皆様にお会いできますことを、心よりお待ち申し上げております。 -
新築
2,680万円
101.02㎡ (3LK) /新築 /2階建
- 駐車2台可
- 建設住宅性能評価書付
- 閑静な住宅地
- 公共下水
【物件コメント】
・小中学校まで徒歩10分圏内!
・安心の長期優良住宅で、減税や優遇措置も♪
・LDKから洗面スペースへと繋がる、効率的な家事動線♪
・パントリー+WIC+S。収納豊富な人気の間取りです。
・主寝室が広く、WICでお部屋もスッキリ。
・主要道路へのアクセスが良く、各方面へのお出掛けに便利です♪
・落合公園まで徒歩19分♪お子様の公園遊びやペットのお散歩に最適です☆
おうちと皆様のご縁を結ぶことが私たちの使命です。
皆様にお会いできますことを、心よりお待ち申し上げております。 -
新築
3,390万円
100.26㎡ (4LDK) /新築 /2階建
- 駐車2台可
- 建設住宅性能評価書付
- 閑静な住宅地
- 公共下水
【物件コメント】
・地震に強い!安心の耐震等級3☆
・整形地、駐車は3台可能です♪(車種によります)
・渕間公園まで徒歩2分♪お子様の公園遊びやペットのお散歩に最適です☆
・スーパーやコンビニ、ドラッグストアなどの商業施設が充実♪
・庭先が広くて日当り良好♪爽やかな風が抜けるおうちです☆
おうちと皆様のご縁を結ぶことが私たちの使命です。
皆様にお会いできますことを、心よりお待ち申し上げております。 -
新築
3,880万円~3,980万円
105.17㎡~111.79㎡ (5LDK) /予定 /2階建
- 駐車2台可
- 建設住宅性能評価書付
- 閑静な住宅地
- 公共下水
【物件コメント】
・上条小学校まで徒歩15分。
・閑静な住宅地で、環境も良好なエリア☆
・主要道路へのアクセスが良く、各方面へのお出掛けに便利です♪
・リビング横にプラス1部屋!2階に洋室4部屋があり、ゆとりの5LDK♪
・広い洗面スペースで家事効率UP♪
・あると便利なキッチン収納☆収納豊富な人気の間取りです。
おうちと皆様のご縁を結ぶことが私たちの使命です。
皆様にお会いできますことを、心よりお待ち申し上げております。 -
新築
3,690万円
96.69㎡ (4LDK) /予定 /2階建
- 駐車2台可
- 建設住宅性能評価書付
- 閑静な住宅地
- 公共下水
【物件コメント】
・安心の長期優良住宅で、減税や優遇措置も♪
・住宅性能評価を取得☆住宅ローン控除の上限もUP!
・徒歩圏内にスーパーやコンビニ、ドラッグストアなどの商業施設が充実♪
・六軒屋公園まで徒歩5分♪お子様の公園遊びやペットのお散歩に最適☆
・LDKから洗面スペースへと繋がる、効率的な家事動線♪
・主寝室が広く、WICでお部屋もスッキリ。
おうちと皆様のご縁を結ぶことが私たちの使命です。
皆様にお会いできますことを、心よりお待ち申し上げております。 -
新築
3,799万円
117.05㎡ (4LDK) /新築 /2階建
- 駐車2台可
- 閑静な住宅地
- 公共下水
【物件コメント】
・限定1邸☆
・小中学校まで徒歩15分圏内!
・スーパーやコンビニ、ドラッグストアなどの商業施設が充実♪
・保育施設が近く、公園も多いため子育て世帯に好環境☆
・主要道路へのアクセスが良く、各方面へのお出掛けに便利です♪
・ビルトインガレージで雨の日でもぬれずに車の乗り降りが可能です☆
・広いリビング20.5帖!くつろぎスペースが家族の憩いの空間に☆
おうちと皆様のご縁を結ぶことが私たちの使命です。
皆様にお会いできますことを、心よりお待ち申し上げております。
【物件コメント】
・家族三世代が安心に住める長期優良住宅☆
・角地のため圧迫感がなく、爽やかな風が抜けるおうち☆
・玄関上部に吹抜があり、自然光が射し込みます☆
・広いリビング17.25帖!くつろぎスペースが家族の憩いの空間に☆
・シンプルなデザインで使い勝手の良いオープンサニタリー採用♪
・あると便利な土間収納☆収納豊富な人気の間取り。
おうちと皆様のご縁を結ぶことが私たちの使命です。
皆様にお会いできますことを、心よりお待ち申し上げております。